Overslaan naar inhoud

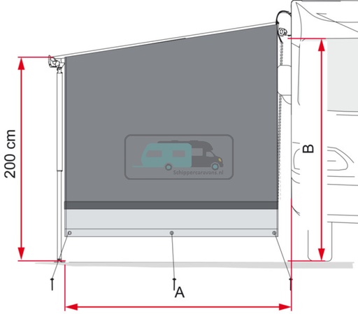
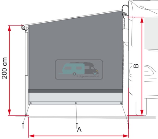
Zijwanden